Achetez, louez, ou vendez votre bien immobilier.
















A Vendre. L’Immobilier à Saint Mandrier sur mer (83430), C’est en Vente Chez RIVOLI. Proche des plages et du Port, une maison d’une superficie totale habitable de 173m² composée de deux appartements distincts.
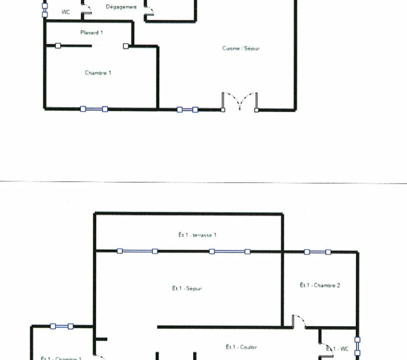
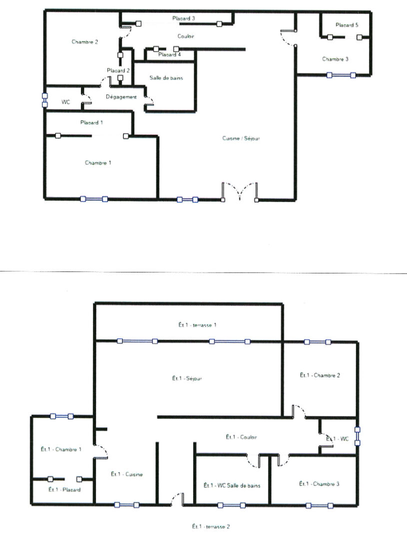
Au rez-de-chaussée, un Type 3/4 climatisé comprenant un séjour donnant sur la terrasse et la piscine, une cuisine ouverte, récente et équipée, deux chambres et un coin nuit. A l’étage, un Type 4 climatisé comprenant un séjour donnant sur une terrasse plein Ouest offrant une vue sur la mer, une cuisine ouverte récente équipée, trois chambres. Jardin arboré stationnement possible sur la parcelle de terrain pour plusieurs véhicules., La maison est bien entretenue, en bon état général et aux prestations actuelles. Elle n’attend plus que vous pour une nouvelle vie.
* C’est VENDU, L’ACTE AUTHENTIQUE Est Signé ! * Résidence LA GRANDE RADE * (83430) Saint Mandrier Sur Mer *
Owning a home is a keystone of wealth… both financial affluence and emotional security.
Suze Orman